Водяна рушникосушка Terma Domi
Детальний опис Водяна рушникосушка Terma Domi
Рушникосушка Terma Domi - класичний радіатор для ванних кімнат від торгової марки Терма. Представлений прилад виготовлений у формі драбинки випухлої форми, розмір вертикальних колекторів - 30х30 мм, круглі горизонтальні ламелі йдуть діаметром 18 мм. Для зручності використання між групами ламелей зроблені більші проміжки.
Розміри сушки для рушників Терма Домі
Виробник пропонує 9 розмірів конкретного виробу:
- По висоті: 786 мм, 1116 мм, 1479 мм
- По ширині: 400 мм, 500 мм, 600 мм
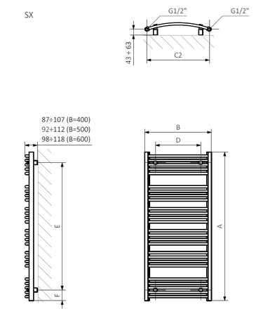
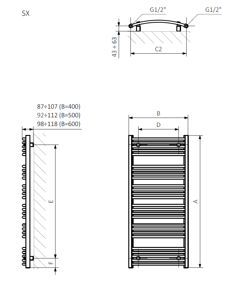
В залежності від висоти кількість горизонтальних перетинок, а також проміжків між нми змінюється. На зображенні нижче можна подивитися креслення кожного розміру.

Креслення та способи підключення Terma Domi
Матеріал виготовлення сушки Домі - сталь, яка витримує робочий тиск в 10 бар та температру теплоносія в 95 С. Звертаємо вашу увагу, що данний прилад призначений для встановлення тільки в закриті системи опалення. В комплект поставки входить кріплення в колір та кран маєвського для спуску повітря, крани для підключення до труб купуються окремо.
Рушникосушка Терма Домі у водяній версії йде з нижнім підлючення знизу колектора, для кожної ширини міжосьова відстань буде різною:
- ширина 400 мм - міжвісь 370 мм
- ширина 500 мм - міжвісь 470 мм
- ширина 600 мм - міжвісь 570 мм

Прилади опалення ТМ Терма мають великий попит на ринку України через високу якість, гарний дизайн та конкурентну вартість. Купити рушникосушку Terma Domi можна через наш сайт або по телефону (050) 720-18-18 (Вайбер, Телеграм).
Характеристики товара Водяна рушникосушка Terma Domi
Відгуків не знайдено
Переглянути цей товар
Поділитися своїми думками з іншими клієнтами