9/9

ЖК Зарічний

Наведіть на картинку для збільшення
Зв'яжіться з нами за ціною
Доставка
Варіанти оплати
Наші переваги

Детальний опис ЖК Зарічний

ЖК Зарічний, один із топових комплексів у м. Києві, який зводиться Київміськбудом на берегах Дніпра. Ось уже перші будинки здані в експлуатацію та щасливі власники нових квартир починають робити ремонти. Особливістю даного комплексу є велика площа скління квартир, де не бажано залишати встановлені забудовником сталеві радіатори, які псують весь інтер'єр та шикарний вигляд із вікон. Клієнти змінюють їх на внутрішньопідлогові конвектори, також особливістю є те, що частина скління радіусна, і тут команда фахівців Салон Тепла, готова вам запропонувати найкращі варіанти вирішення питань опалення квартир за допомогою вбудованих у підлогу конвекторів.

Ми пропонуємо та погоджуємо з нашими клієнтами з ЖК Зарічний різні варіанти внутрішньопідлогового опалення, кому підбираємо прямі внутрішньопідлогові конвектори симетрично скління, а комусь робимо радіусні конвектори вбудовані в підлогу ідентично радіусу скління. І звичайно ж, ми рекомендуємо кращих, ефективних і найякісніших. виробників внутрішньопідлогових конвекторів.

Тому якщо ви підійшли до питання встановлення внутрішньопідлогових систем опалення в ЖК Зарічному, то рекомендуємо Вам звернутися до компанії Салон Тепла, і ми виберемо для вас оптимальний варіант опалення.


Клінет Павло:

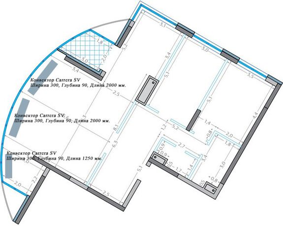
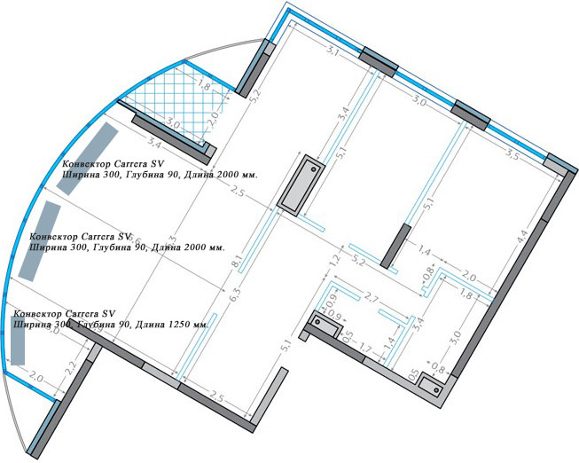
Клієнт звернувся до нас з проханням підібрати внутрішньопідлогові конвектори для квартири з ЖК Зарічний. Клієнту було запропоновано конвектор Carrera з примусовою конвекцією та прогумованими гратами, глибина конвекторів 90 мм., ширина 300 мм.

Відгук клієнта: Купував внутрішньопідлогові конвектори для квартири в ЖК Зарічний. Менеджери допомогли розрахувати розмір та порадили оптимальний варіант. Доставили швидко. Всім задоволений.


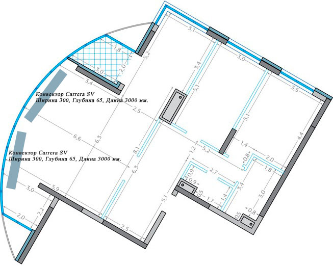
Клієнт Дмитро:

Клієнт звернувся з проханням підібрати внутрішньопідлогові конвектори для квартири з таким самим плануванням, як у клієнта вище (Павло). Відповідно, ми запропонували вже перевірені конвектори Carrera. Єдине що клієнт захотів глибину 65, та два конвектори загалом. Йому було запропоновано та поставлено на об'єкт модель MV 300.3000.65 з решіткою алюміній.

Відгуки

Відгуків не знайдено

Переглянути цей товар

Поділитися своїми думками з іншими клієнтами

Написати відгук
Возможно вас заинтересуют